544 Ashley Heights (Lot 89) DriveAberdeen, NC 28315
Due to the health concerns created by Coronavirus we are offering personal 1-1 online video walkthough tours where possible.


Mortgage Calculator
Monthly Payment (Est.)
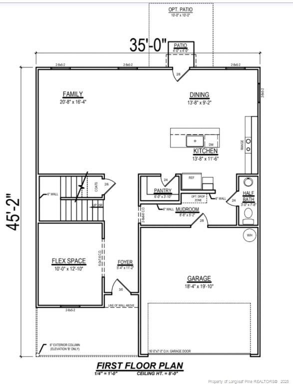
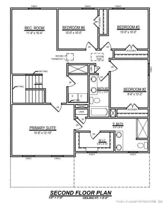
$1,528Up to $15k in builder incentives!! Welcome to Ashley Heights, a beautiful neighborhood in Aberdeen, nestled within Hoke County. Introducing the Washington plan by award-winning builder Ben Stout Construction, this home perfectly combines style and function. Upon entering, you’re greeted by a versatile flex space ideal for a home office or formal dining. The heart of the home features an impressive open-concept living area and a spacious family room that’s perfect for gatherings. The kitchen boasts a generous walk-in pantry and a large island with seating, complemented by upscale shaker cabinets, granite countertops, an undermount sink, and stainless steel appliances. Enjoy seamless access to the patio from the adjacent dining area. The first floor is completed by a handy mudroom and a stylish half bath. Upstairs, you’ll find a spacious recreation room, additional bedrooms, and a well-appointed full bath. The owner's suite serves as a luxurious retreat, featuring a walk-in closet and dual vanities. Just a short drive from downtown Aberdeen and Southern Pines, you'll find charming shops, fine dining, and world-class golf courses. Ashley Heights offers convenient access to Cary, Raleigh/Durham, and Fort Bragg—only 25 minutes to Longstreet ACP and 20 minutes to Camp Mackall. Seize this opportunity to own a beautifully crafted home in a picturesque location. Contact the listing agent today to learn more. Welcome home! Discover the perfect blend of comfort and elegance at Ashley Heights—your dream home awaits! Estimated completion November 2025
| a week ago | Listing updated with changes from the MLS® | |
| 2 weeks ago | Listing first seen on site |
Listings that are marked with an icon are provided courtesy of the Triangle MLS, Inc. of North Carolina, Internet Data Exchange Database. Copyright 2025 Triangle MLS, Inc. of North Carolina. All rights reserved.
Last checked: 2025-11-05 12:50 AM UTC

Did you know? You can invite friends and family to your search. They can join your search, rate and discuss listings with you.