5305 Tabor CourtFayetteville, NC 28303
Due to the health concerns created by Coronavirus we are offering personal 1-1 online video walkthough tours where possible.




Mortgage Calculator
Monthly Payment (Est.)
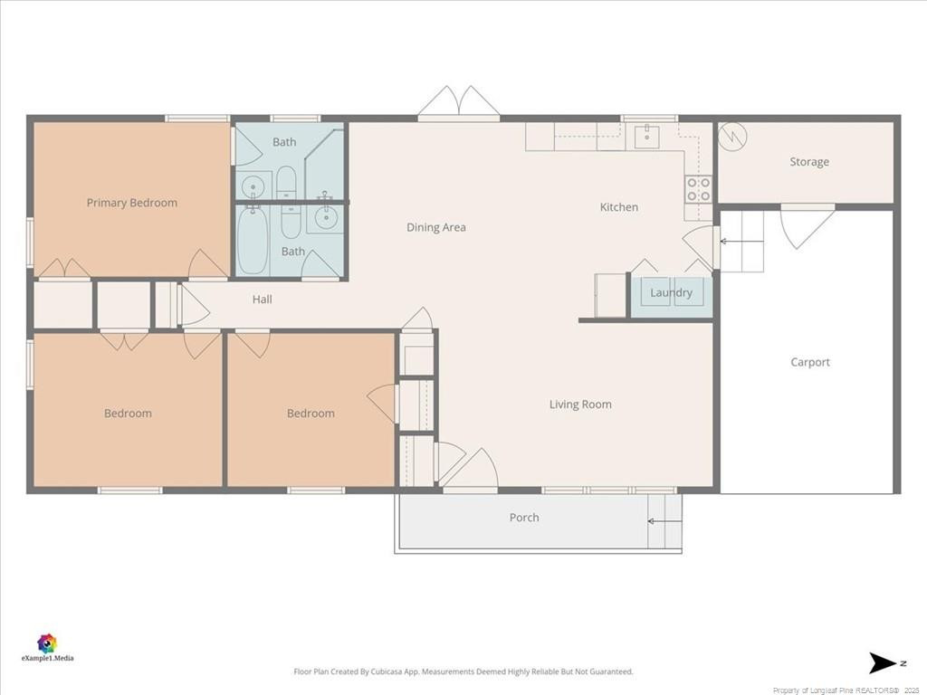
$844Your Dream Brick Ranch Home Awaits!Look no further—your perfect classic North Carolina brick ranch with modern updates is here! This move-in-ready home features an open floor plan with a spacious kitchen that flows seamlessly into the breakfast/dining area and large family room—perfect for entertaining or relaxing.Inside, you’ll find beautifully updated kitchen cabinets, sleek granite countertops, and all-black appliances. The master bedroom includes a spacious shower and ample closet space. Two additional generously sized bedrooms share a second full bathroom, offering plenty of room for family or guests.Freshly painted with refinished hardwood floors throughout, this home blends classic charm with modern comfort. Enjoy the fully fenced, shaded backyard—ideal for outdoor living, pets, or gardening.Located close to schools, parks, and shopping centers, and Fort Bragg. This home truly has it all!Schedule your showing today—don’t miss out!
| 2 weeks ago | Listing updated with changes from the MLS® | |
| 3 weeks ago | Status changed to Pending | |
| 4 weeks ago | Listing first seen on site |
Listings that are marked with an icon are provided courtesy of the Triangle MLS, Inc. of North Carolina, Internet Data Exchange Database. Copyright 2025 Triangle MLS, Inc. of North Carolina. All rights reserved.
Last checked: 2025-11-04 08:14 PM UTC

Did you know? You can invite friends and family to your search. They can join your search, rate and discuss listings with you.