Save
Ask
Tour
Hide
$274,950
10 Days On Site
188 Buggy Top (Lot 23) LaneAutryville, NC 28318
For Sale|Single Family Residence|Active
3
Beds
3
Total Baths
2
Full Baths
1
Partial Bath
1,625
SqFt
$169
/SqFt
2025
Built
Subdivision:
Horseshoe Ridge
County:
Sampson
Due to the health concerns created by Coronavirus we are offering personal 1-1 online video walkthough tours where possible.
Call Now: 919-404-SHOW
Is this the listing for you? We can help make it yours.
919-404-SHOW

Save
Ask
Tour
Hide
Mortgage Calculator
Monthly Payment (Est.)
$1,254Calculator powered by Showcase IDX, a Constellation1 Company. Copyright ©2025 Information is deemed reliable but not guaranteed.
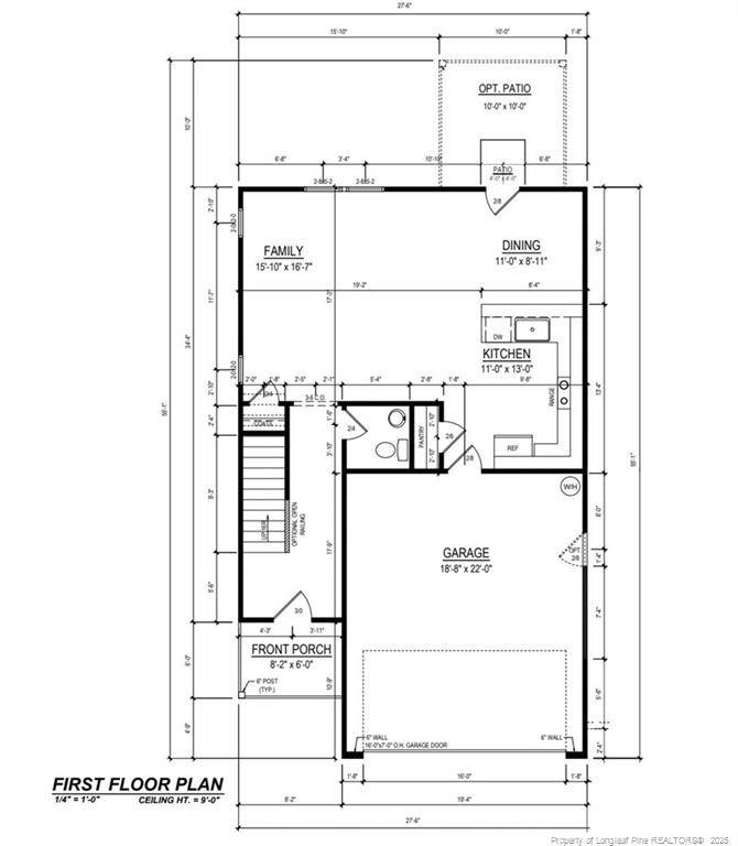
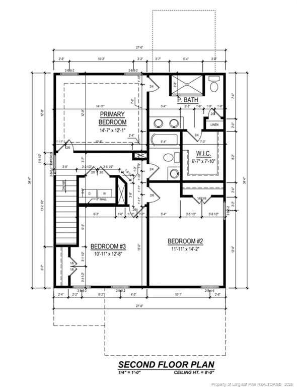
Welcome to the all new Ben Stout Construction Piedmont floor plan! Just minutes away from Stedman off of an easily accessible HWY 24. This two-story home is an entertainer's delight, featuring an open concept main floor space that includes the dining room, family room, and kitchen. Upstairs you'll find a large primary bedroom and ensuite, two more bedrooms, and a full guest bathroom. Backyard has a patio with over an ACRE of land.
Save
Ask
Tour
Hide
Listing Snapshot
Price
$274,950
Days On Site
10 Days
Bedrooms
3
Inside Area (SqFt)
1,625 sqft
Total Baths
3
Full Baths
2
Partial Baths
1
Lot Size
1.22 Acres
Year Built
2025
MLS® Number
LP751398
Status
Active
Property Tax
N/A
HOA/Condo/Coop Fees
N/A
Sq Ft Source
N/A
Friends & Family
Recent Activity
a week ago | Listing updated with changes from the MLS® | |
a week ago | Listing first seen on site |
General Features
Acres
1.22
Attached Garage
Yes
Garage
Yes
Garage Spaces
2
Levels
Two
Parking
PavedAttached
Property Condition
New Construction
Property Sub Type
Single Family Residence
Security
Fire Alarm
Sewer
Septic Tank
Special Circumstances
Standard
SqFt Total
1625
Interior Features
Appliances
DishwasherMicrowaveRangeWasher/Dryer
Cooling
Fireplace Features
None
Flooring
CarpetVinyl
Heating
Heat Pump
Interior
Eat-in KitchenGranite CountersKitchen IslandWalk-In Closet(s)
Laundry Features
InsideUpper Level
Window Features
Insulated Windows
Save
Ask
Tour
Hide
Exterior Features
Patio And Porch
CoveredFront PorchPatio
Windows/Doors
Insulated Windows
Community Features
Roads
Paved
Listing courtesy of DARK HORSE GROUP POWERED BY LPT REALTY of LPT REALTY LLC
Listings that are marked with an icon are provided courtesy of the Triangle MLS, Inc. of North Carolina, Internet Data Exchange Database. Copyright 2025 Triangle MLS, Inc. of North Carolina. All rights reserved.
Last checked: 2025-10-18 04:43 AM UTC

Listings that are marked with an icon are provided courtesy of the Triangle MLS, Inc. of North Carolina, Internet Data Exchange Database. Copyright 2025 Triangle MLS, Inc. of North Carolina. All rights reserved.
Last checked: 2025-10-18 04:43 AM UTC
Neighborhood & Commute
Source: Walkscore
Disclosure: Community information and market data powered by Constellation Data Labs. Information is deemed reliable but not guaranteed.
Save
Ask
Tour
Hide
Did you know? You can invite friends and family to your search. They can join your search, rate and discuss listings with you.