1500 Washington StreetDurham, NC 27701
Due to the health concerns created by Coronavirus we are offering personal 1-1 online video walkthough tours where possible.




Mortgage Calculator
Monthly Payment (Est.)
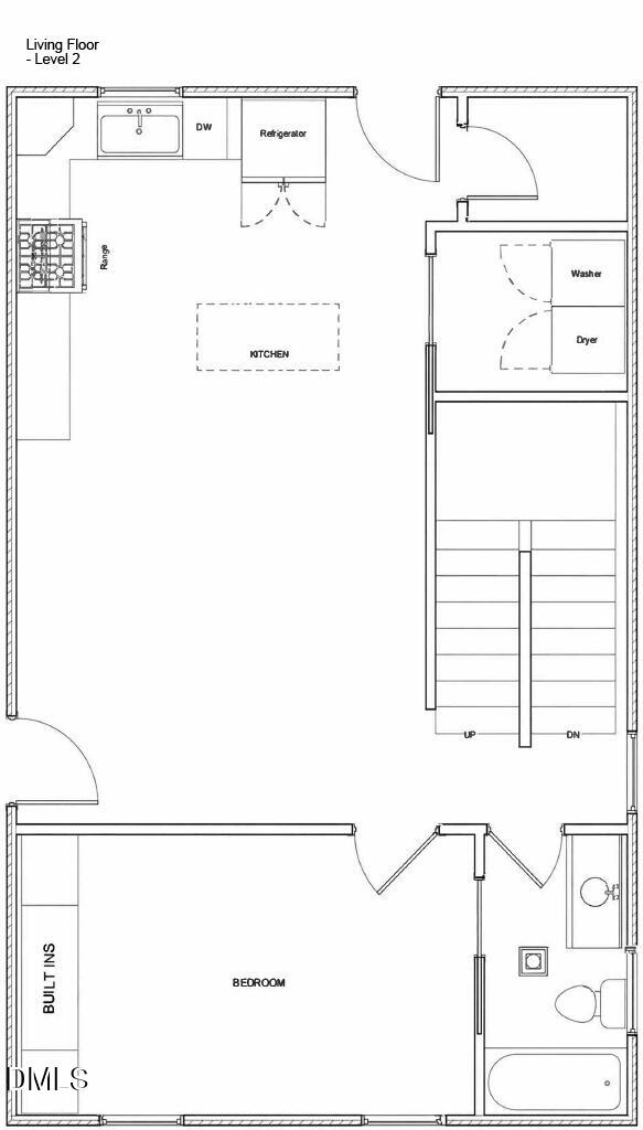
$3,650Welcome to the WASHINGTON PLAN Home in Duke Park. This three-story house offers buyers the chance to own a New Construction house in the desirable Durham Duke Park area. On the first floor, you'll find a bedroom with en-suite, a bonus room, and garage. The main floor features an open-concept kitchen and living area, a bedroom, full bathroom, laundry room and pantry. On the top floor, the secluded primary suite offers a high, vaulted ceiling with skylights, a luxurious bathroom, and spacious walk-in closet. More information and design specs can be found on the builder's website: https://dukeparkhomes.com/or by calling (910) 727-5588. Scheduled to be completed in Fall 2026.
| 6 days ago | Listing updated with changes from the MLS® | |
| 6 days ago | Listing first seen on site |
Listings that are marked with an icon are provided courtesy of the Triangle MLS, Inc. of North Carolina, Internet Data Exchange Database. Copyright 2026 Triangle MLS, Inc. of North Carolina. All rights reserved.
Last checked: 2026-04-30 12:36 PM UTC

Did you know? You can invite friends and family to your search. They can join your search, rate and discuss listings with you.