62 Thistle Patch PlaceAngier, NC 27501
Due to the health concerns created by Coronavirus we are offering personal 1-1 online video walkthough tours where possible.




Mortgage Calculator
Monthly Payment (Est.)
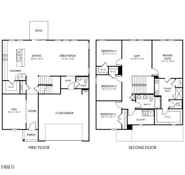
$1,601Brand new, energy-efficient home available by May 2026! Outfit the Dakota's main-level flex space as a home office and skip your commute. In the kitchen, the island overlooks the open living space. Upstairs, the loft separates the secondary bedrooms from the primary suite. NOW SELLING. River Glen offers a series of one- and two-story floorplans built with our signature energy efficiency and featuring the latest design trends. Enjoy quick access to local dining, shopping and entertainment in downtown Angier while nearby US-401 connects easily to Raleigh and the rest of the Triangle. Amenities include walking trails and a tot lot. Schedule a tour today. Each of our homes is built with innovative, energy-efficient features designed to help you enjoy more savings, better health, real comfort and peace of mind.
| 18 hours ago | Listing updated with changes from the MLS® | |
| 18 hours ago | Listing first seen on site |
Listings that are marked with an icon are provided courtesy of the Triangle MLS, Inc. of North Carolina, Internet Data Exchange Database. Copyright 2026 Triangle MLS, Inc. of North Carolina. All rights reserved.
Last checked: 2026-03-28 02:43 PM UTC

Did you know? You can invite friends and family to your search. They can join your search, rate and discuss listings with you.