3417 Horton StreetRaleigh, NC 27607
Due to the health concerns created by Coronavirus we are offering personal 1-1 online video walkthough tours where possible.




Mortgage Calculator
Monthly Payment (Est.)
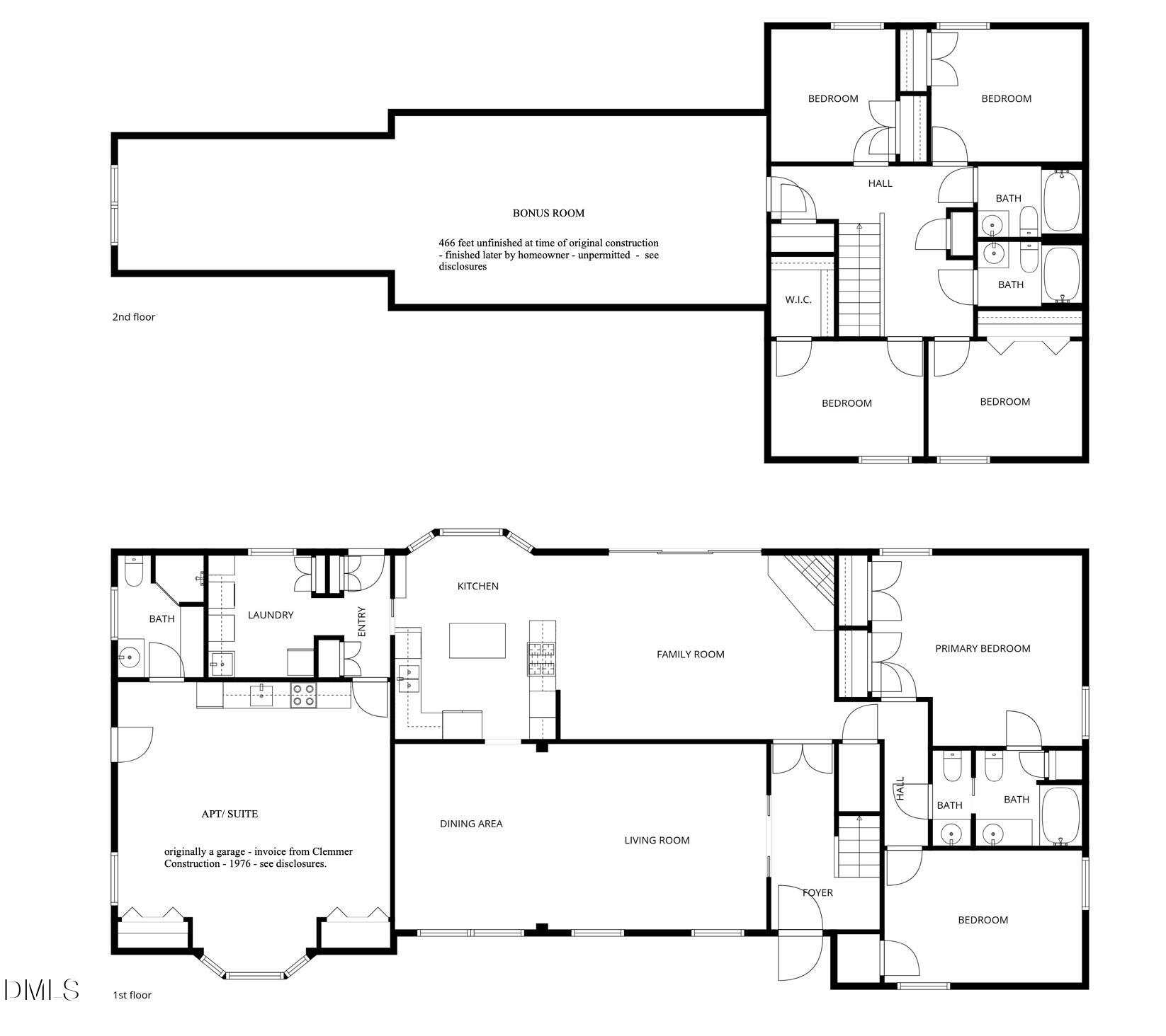
$4,2433417 Horton Street is a rare offering in today's Inside-the-Beltline market -- currently the largest home available under $950,000 in the Lacy School District, and it's set on an exceptionally private 0.6-acre wooded lot you have to see to believe. Built by Jud Ammons, a name long associated with quality ITB construction, the home offers more than 3,600 square feet of functional living space. What truly sets this property apart is the setting. With no immediate neighbors in front or behind, the home is surrounded by mature hardwoods, a small creek, and seasonal color that creates a peaceful, natural backdrop year-round. Kitchen and Den share access to the elevated back deck, where the view stretches through a canopy of trees -- offering a level of privacy and quiet that is increasingly difficult to find this close to downtown. A flexible floorplan with 6 bedrooms allows for an easy 5-bedroom + office setup, while a fully separate-entry suite with its own bath and kitchenette adds even more versatility -- ideal for guests, multigenerational living, workspace, or potential income. Inside, the home offers expansive, light-filled living areas, including a large combined living/dining space, an oversized den, and a fireplace that anchors the main living area. Thoughtful details like pocket doors, and flexible-use rooms add character, while generous storage throughout supports everyday functionality. An upper-level bonus room (finished by the homeowner; see disclosures) provides additional space for a gym, studio, or media room, and a partially finished basement workshop with exterior access offers even more flexibility. Greenway access sits just at the end of the street, offering miles of scenic trails right outside your door. Beyond that, the home is just minutes from NC State, the Village District, downtown Raleigh, and major area hospitals, all within a friendly, established neighborhood with access to well-regarded schools. This is a different kind of Inside-the-Beltline opportunity -- one that prioritizes land, space, privacy, and flexibility in a price range where those features are increasingly rare. Video Available at www.3417horton.com
| 3 days ago | Listing updated with changes from the MLS® | |
| 4 weeks ago | Listing first seen on site |
Listings that are marked with an icon are provided courtesy of the Triangle MLS, Inc. of North Carolina, Internet Data Exchange Database. Copyright 2026 Triangle MLS, Inc. of North Carolina. All rights reserved.
Last checked: 2026-04-20 07:31 PM UTC

Did you know? You can invite friends and family to your search. They can join your search, rate and discuss listings with you.