2440 B Brookville DriveGreenville, NC 27834
Due to the health concerns created by Coronavirus we are offering personal 1-1 online video walkthough tours where possible.


Mortgage Calculator
Monthly Payment (Est.)
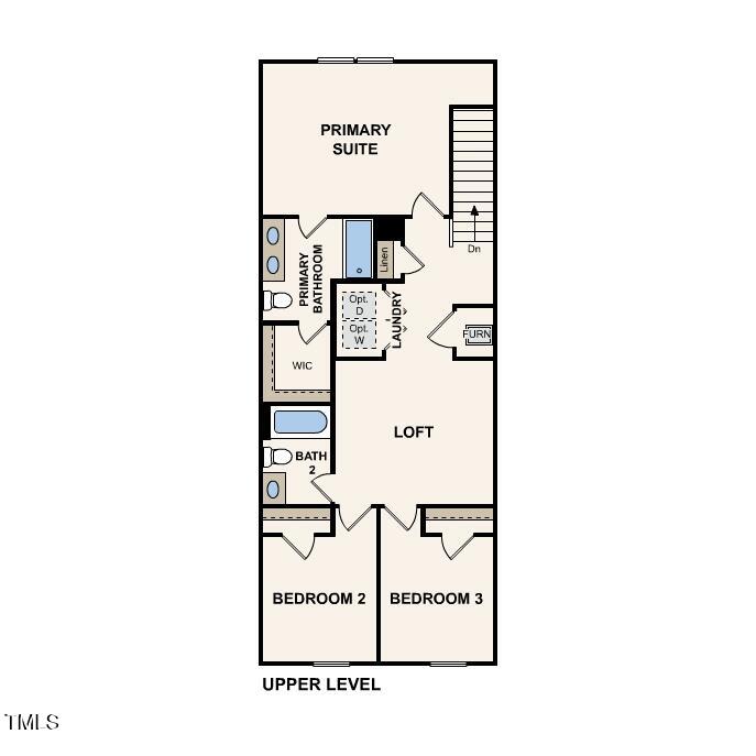
$1,026''Discover modern luxury with in the sought-after Cobblestone! The Holly Springs Plan is a stunning new 2 story Townhome that combines modern elegance with practicality, featuring an open-concept design that flows seamlessly from the expansive great room to the home's central hub. The contemporary kitchen dazzles with stylish cabinetry, sleek quartz countertops, and LG stainless steel appliances, including a smooth-top range, overhead microwave, and dishwasher, ideal for any culinary endeavor. Upstairs, discover all bedrooms, a dedicated laundry room, and a versatile loft space perfect for an office, play area, or cozy reading nook. The generous primary suite offers a private bath with dual vanity sinks and a spacious walk-in closet. A 1-car garage and energy-efficient Low E insulated dual-pane vinyl windows add to the appeal, complemented by a 1-year limited home warranty for added peace of mind. Embrace a vibrant lifestyle in Holly Springs Plan. ''
| 23 hours ago | Listing updated with changes from the MLS® | |
| 3 weeks ago | Price changed to $224,990 | |
| a month ago | Listing first seen on site |
Listings that are marked with an icon are provided courtesy of the Triangle MLS, Inc. of North Carolina, Internet Data Exchange Database. Copyright 2026 Triangle MLS, Inc. of North Carolina. All rights reserved.
Last checked: 2026-04-18 09:51 AM UTC

Did you know? You can invite friends and family to your search. They can join your search, rate and discuss listings with you.