543 Bragg StreetRaleigh, NC 27610
Due to the health concerns created by Coronavirus we are offering personal 1-1 online video walkthough tours where possible.


Mortgage Calculator
Monthly Payment (Est.)
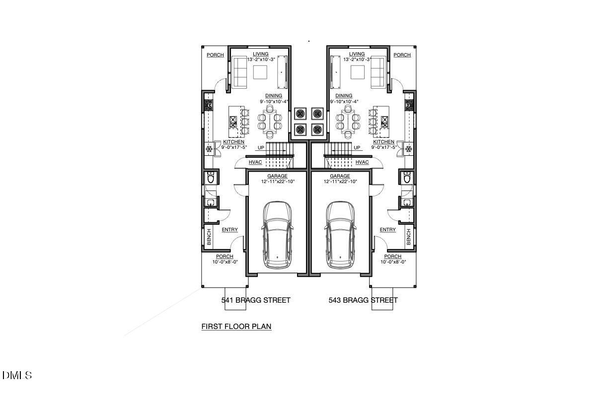
$2,715Welcome to 543 Bragg Street where easy downtown living meets brand-new townhome-style condo, ideally located just steps from one of the city's many greenway paths--giving you direct access to everything the city has to offer right outside your doorstep. This home features 3 bedrooms all with walk-in closets and an open-concept main living area, perfect for entertaining or everyday living. Designed with lifestyle in mind, the property offers light filled bedrooms, multiple outdoor seating spaces and provides plenty of room to relax, host friends, or enjoy fresh air throughout the day. Take a short ride or stroll along the greenway to the beautiful John Chavis Memorial Park, a 28+ acre park featuring trails, recreation areas, and green space to explore. You'll also love the diverse selection of international dining options located just minutes from your front door. Experience the perfect blend of low maintenance living with modern comfort, outdoor access, and vibrant city at your fingertips.
| 4 days ago | Listing updated with changes from the MLS® | |
| a week ago | Listing first seen on site |
Listings that are marked with an icon are provided courtesy of the Triangle MLS, Inc. of North Carolina, Internet Data Exchange Database. Copyright 2026 Triangle MLS, Inc. of North Carolina. All rights reserved.
Last checked: 2026-03-16 11:51 AM UTC

Did you know? You can invite friends and family to your search. They can join your search, rate and discuss listings with you.