2122 Pink Peony Circle 153Durham, NC 27703
Due to the health concerns created by Coronavirus we are offering personal 1-1 online video walkthough tours where possible.




Mortgage Calculator
Monthly Payment (Est.)
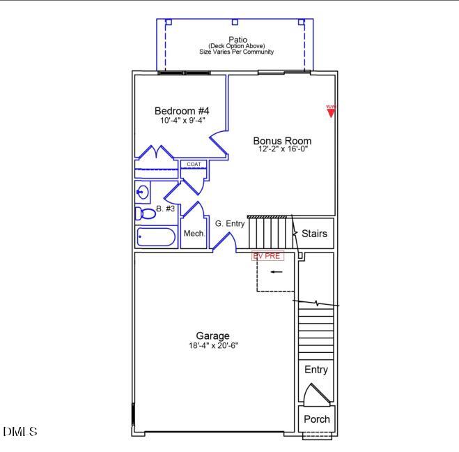
$2,132Discover the Veronica — a beautifully designed 3-story townhome that offers exceptional space, style, and versatility! From the moment you enter, you'll appreciate the upscale finishes and attention to detail, including elegant hardwood stairs and thoughtfully curated design elements throughout. This home features a spacious open-concept main level and a huge bonus room that's perfect for entertaining, hosting guests, or creating your dream media or game room. With three stories of well-planned living space, the Veronica offers flexibility for modern lifestyles — whether you're working from home, entertaining, or just relaxing in style. Experience the perfect blend of low-maintenance living and high-end comfort in this stunning townhome.
| 4 weeks ago | Listing updated with changes from the MLS® | |
| 3 months ago | Listing first seen on site |
Listings that are marked with an icon are provided courtesy of the Triangle MLS, Inc. of North Carolina, Internet Data Exchange Database. Copyright 2026 Triangle MLS, Inc. of North Carolina. All rights reserved.
Last checked: 2026-05-15 09:00 AM UTC

Did you know? You can invite friends and family to your search. They can join your search, rate and discuss listings with you.