154 Thomas TrailLillington, NC 27546
Due to the health concerns created by Coronavirus we are offering personal 1-1 online video walkthough tours where possible.




Mortgage Calculator
Monthly Payment (Est.)
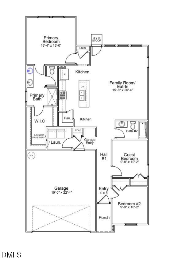
$1,344Presale Opportunity - Build Your Dream Ranch Home on This Homesite This is a presale opportunity offering the chance to build this thoughtfully designed single-story ranch floorplan—or choose any available floorplan that fits this specific homesite, allowing you to personalize your home to match your lifestyle and needs. The featured ranch layout offers open-concept living with a spacious family room and eat-in kitchen, complete with a large center island, ample storage, and seamless flow for everyday living and entertaining. A private primary suite with walk-in closet and en-suite bath is thoughtfully separated from secondary bedrooms, creating a comfortable and functional layout. Additional highlights include a pass-through laundry room, covered front porch, and a two-car garage. Located on a desirable homesite that backs up to beautiful treelines and a pond, this opportunity provides flexibility in both home design and finishes, making it ideal for buyers who want to create a home that truly reflects their vision. Pricing shown is based on the builder's starting price and is subject to change based on selected floorplan, structural options, lot premiums, and buyer-selected upgrades. ✨ Build new, build your way—this presale opportunity offers customization, comfort, and long-term value. Visit www.mungo.com for more information on available floorplans.
| 2 weeks ago | Listing updated with changes from the MLS® | |
| 2 weeks ago | Price changed to $294,547 | |
| 3 months ago | Listing first seen on site |
Listings that are marked with an icon are provided courtesy of the Triangle MLS, Inc. of North Carolina, Internet Data Exchange Database. Copyright 2026 Triangle MLS, Inc. of North Carolina. All rights reserved.
Last checked: 2026-05-02 02:50 PM UTC

Did you know? You can invite friends and family to your search. They can join your search, rate and discuss listings with you.