1104 Bell Heather Road 74Durham, NC 27703
Due to the health concerns created by Coronavirus we are offering personal 1-1 online video walkthough tours where possible.




Mortgage Calculator
Monthly Payment (Est.)
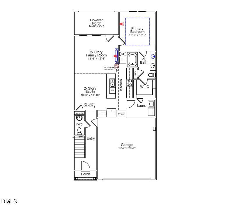
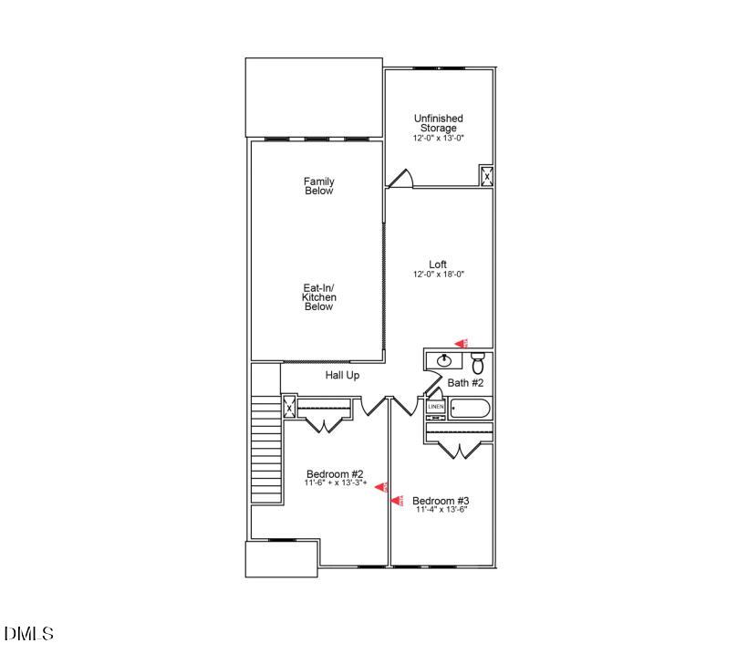
$1,927Experience elevated living at Ovation at Sweetbrier, a 55+ active adult community where thoughtful design and vibrant lifestyle come together. The Hydrangea two-car garage townhome features a spacious open-concept layout welcoming you with soaring ceilings and tall windows for enhanced natural light. The kitchen, dining and great room flow seamlessly for easy entertaining and everyday comfort. Luxury vinyl plank flooring adds warmth and durability on the main level. The chef-inspired gourmet kitchen is equipped with quartz countertops, a large center island, and stainless-steel appliances—including a gas cooktop with vent hood, and built-in wall ovens/microwave—making both cooking and hosting a pleasure. The main-floor primary suite features a boxed ceiling and en-suite bath with a beautifully tiled walk-in shower and bench seat, double vanity, linen closet and a large walk-in closet with a pass-thru to the laundry room for ultimate convenience. From the great room, step out to your rear covered porch, a cozy outdoor space perfect for quiet mornings, relaxing afternoons, or evening gatherings—rain or shine. A beautiful staircase with hardwood treads and open railing leads upstairs where you'll you'll find a flexible loft area that makes a great office or den, two guest bedrooms, a full bath, and spacious unfinished walk-in storage room to keep everything organized without sacrificing living or garage space. Enjoy the convenience of low-maintenance living, where exterior upkeep and lawn maintenance is handled for you—giving you more freedom to enjoy the spa-like amenities, travel, hobbies, or simply unwinding. Durable fiber cement siding keeps your home energy efficient, and a tankless water heather provides endless hot water! Live life your way at Ovation at Sweetbrier, with private resort-style amenities including a cutting-edge clubhouse with fitness center, pool, spa/hot tub, pickleball courts, tennis courts, dog park, chess garden park, community garden, scenic paved walking trails and a lifestyle director for planned social events that you can enjoy without ever leaving your neighborhood! These turn-key townhomes are perfect for homeowners on the go! Conveniently located minutes from Brier Creek Parkway with easy access to I-540, I-40, Glenwood/70, RDU Airport, Brier Creek Country Club/Golf and Brier Creek Commons offering a variety of shopping, dining and entertainment options.
| 16 hours ago | Listing updated with changes from the MLS® | |
| 4 days ago | Price changed to $422,300 | |
| 2 weeks ago | Listing first seen on site |
Listings that are marked with an icon are provided courtesy of the Triangle MLS, Inc. of North Carolina, Internet Data Exchange Database. Copyright 2025 Triangle MLS, Inc. of North Carolina. All rights reserved.
Last checked: 2025-12-08 12:15 AM UTC

Did you know? You can invite friends and family to your search. They can join your search, rate and discuss listings with you.