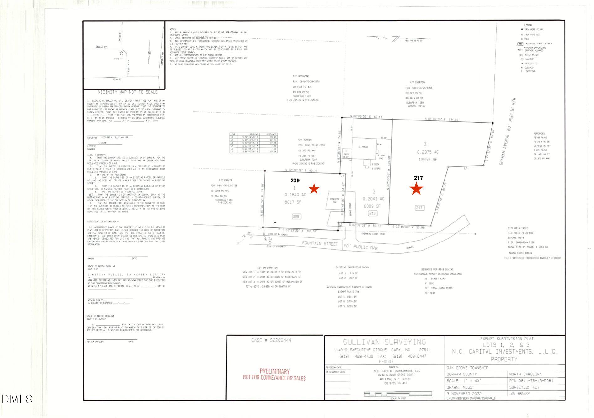
209 Fountain StreetDurham, NC 27703
Due to the health concerns created by Coronavirus we are offering personal 1-1 online video walkthough tours where possible.


Mortgage Calculator
Monthly Payment (Est.)
$406Attention developers and investors — rapidly growing Durham! Located at 209 Fountain St (8015 sq. ft.) offering a great opportunity for your next project. Situated in a highly convenient location near Route 98, lot provide easy access to major roads, shopping, and dining, making them ideal for new development. Public water and sewer connections are nearby (contact Durham County for details), and with no HOA restrictions, you have the freedom to design and build without additional community fees. This is a fantastic investment in an up-and-coming area of Durham. Whether you're looking to build single-family homes, or a custom development, this is a rare opportunity to bring your vision to life. For more details, reach out today!
| 5 hours ago | Listing updated with changes from the MLS® | |
| 9 hours ago | Listing first seen on site |
Listings that are marked with an icon are provided courtesy of the Triangle MLS, Inc. of North Carolina, Internet Data Exchange Database. Copyright 2025 Triangle MLS, Inc. of North Carolina. All rights reserved.
Last checked: 2025-11-21 05:05 AM UTC

Did you know? You can invite friends and family to your search. They can join your search, rate and discuss listings with you.