Save
Ask
Tour
Hide
$116,640
22 Days On Site
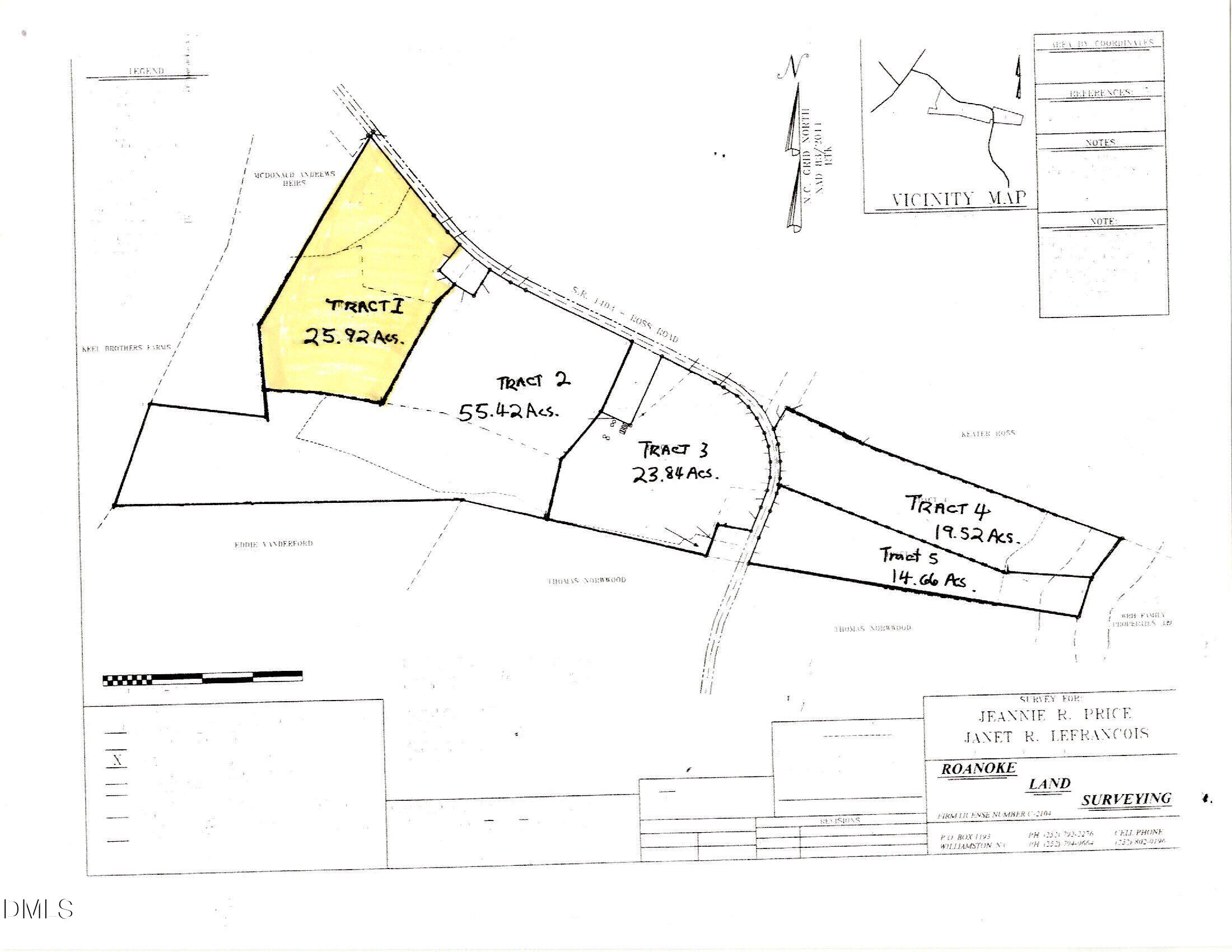
Tract 1 1676 Ross RoadRobersonville, NC 27871
For Sale|Farm|Pending
0
Beds
0
Total Baths
Subdivision:
Not in a Subdivision
County:
Martin
Due to the health concerns created by Coronavirus we are offering personal 1-1 online video walkthough tours where possible.
Call Now: 919-404-SHOW
Is this the listing for you? We can help make it yours.
919-404-SHOW



Save
Ask
Tour
Hide
Mortgage Calculator
Monthly Payment (Est.)
$532Calculator powered by Showcase IDX, a Constellation1 Company. Copyright ©2025 Information is deemed reliable but not guaranteed.
Beautiful farm in Martin County with 5 tracts of land to be auctioned off November 22, 2025 at 11AM, with 4,000 feet of road frontage on Ross Road. 10% down day of sale to be placed in Stone Auction & Realty Trust Account until closing on or before January 8, 2026. A 5% Buyer's Premium will be added to determine contract sales price. Buyer agent must register 48 hours prior to sale date. Listed price is a suggested starting bid.
Save
Ask
Tour
Hide
Listing Snapshot
Price
$116,640
Days On Site
22 Days
Bedrooms
N/A
Inside Area (SqFt)
N/A
Total Baths
N/A
Full Baths
N/A
Partial Baths
N/A
Lot Size
25.92 Acres
Year Built
N/A
MLS® Number
10132995
Status
Pending
Property Tax
$1,000
HOA/Condo/Coop Fees
N/A
Sq Ft Source
N/A
Friends & Family
Recent Activity
| 2 weeks ago | Listing updated with changes from the MLS® | |
| 2 weeks ago | Status changed to Pending | |
| 3 weeks ago | Listing first seen on site |
General Features
Acres
25.92
Additional Property Use
AgriculturalVacant
Property Sub Type
Farm
Sewer
None
Special Circumstances
Auction
Utilities
None
Water Source
None
Zoning
A
Save
Ask
Tour
Hide
Exterior Features
Fencing
None
Lot Features
Wooded
Other Structures
None
Community Features
Financing Terms Available
CashConventional
Roads
Asphalt
Schools
School District
Unknown
Elementary School
Martin County Schools
Middle School
Martin County Schools
High School
Martin County Schools
Listing courtesy of Jeff Stone of Stone Auction & Realty
Listings that are marked with an icon are provided courtesy of the Triangle MLS, Inc. of North Carolina, Internet Data Exchange Database. Copyright 2025 Triangle MLS, Inc. of North Carolina. All rights reserved.
Last checked: 2025-12-06 03:22 AM UTC
Listings that are marked with an icon are provided courtesy of the Triangle MLS, Inc. of North Carolina, Internet Data Exchange Database. Copyright 2025 Triangle MLS, Inc. of North Carolina. All rights reserved.
Last checked: 2025-12-06 03:22 AM UTC
Neighborhood & Commute
Source: Walkscore
Disclosure: Community information and market data powered by Constellation Data Labs. Information is deemed reliable but not guaranteed.
Save
Ask
Tour
Hide

Did you know? You can invite friends and family to your search. They can join your search, rate and discuss listings with you.