268 Yellow River WayGarner, NC 27529
Due to the health concerns created by Coronavirus we are offering personal 1-1 online video walkthough tours where possible.




Mortgage Calculator
Monthly Payment (Est.)
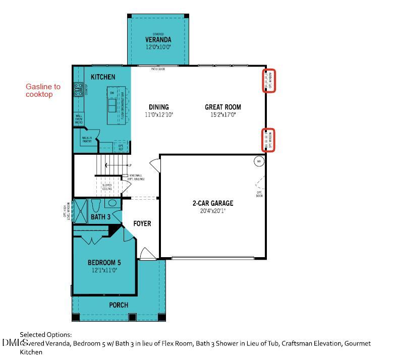
$2,369Parade of Homes award-winning floorplan! The Shenandoah offers an exceptional living experience, thoughtfully designed to complement an active lifestyle. The heart of the home, a combined Great Room, dining room, and gourmet kitchen with a breakfast island, provides a seamless space for creating culinary delights, entertaining guests, and sharing memorable moments. This versatile home also features a convenient fifth bedroom or guest suite on the first floor, ideal for guests or overnight visitors. The upstairs boasts an additional spacious loft, providing even more room for relaxation, hobbies, or gatherings. The expansive primary suite serves as a tranquil retreat, offering a luxurious ensuite bath and a generously sized walk-in closet. Bedrooms 2 through 4 provide comfortable and private accommodations for family members or guests. Anticipating May completion. There is still time to customize design selections.
| 2 weeks ago | Listing updated with changes from the MLS® | |
| 2 months ago | Listing first seen on site |
Listings that are marked with an icon are provided courtesy of the Triangle MLS, Inc. of North Carolina, Internet Data Exchange Database. Copyright 2025 Triangle MLS, Inc. of North Carolina. All rights reserved.
Last checked: 2025-12-25 02:14 PM UTC

Did you know? You can invite friends and family to your search. They can join your search, rate and discuss listings with you.