1305 Glen Eden DriveRaleigh, NC 27612
Due to the health concerns created by Coronavirus we are offering personal 1-1 online video walkthough tours where possible.




Mortgage Calculator
Monthly Payment (Est.)
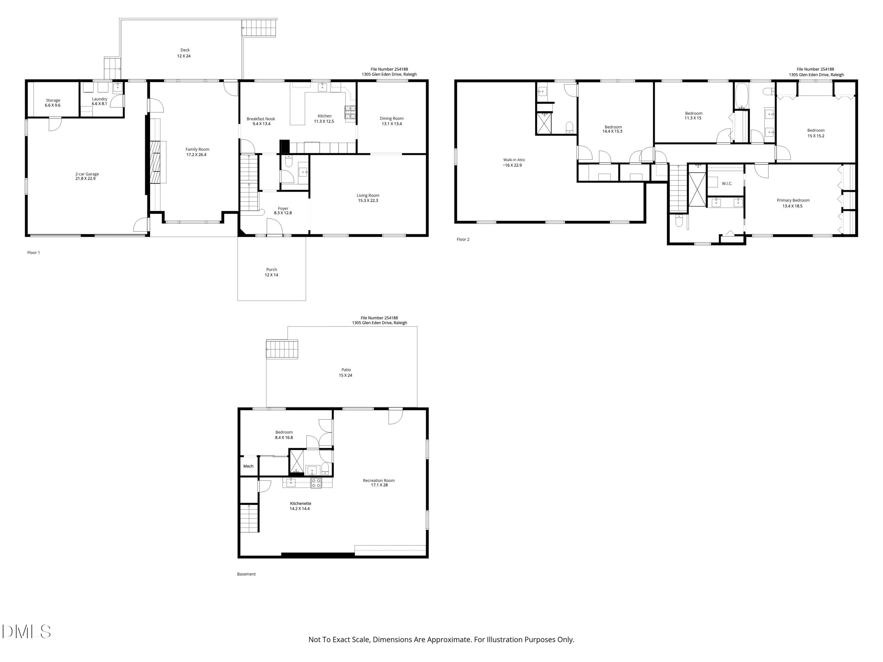
$6,365Welcome to this beautifully updated 5-bedroom, 5-bath home ideally located just minutes from North Hills—one of Raleigh's most desirable destinations for dining, shopping, and entertainment. Nestled on a quiet, tree-lined street, this home offers the perfect blend of modern comfort and timeless charm. Inside, you'll find hardwood floors, designer tile, and thoughtful finishes throughout. The spacious layout features open yet cozy living areas, perfect for entertaining or everyday living. The primary suite feels like a private retreat with a spa-inspired bath and heated floors, while each additional bedroom and bath is designed with comfort and style in mind. The finished lower level includes a private living space with its own entrance, offering versatility for guests, in-laws, or potential rental income. Enjoy peace of mind with major updates including a new roof, deck, gutters, HVAC and heating system, and water heater. Located in the heart of Raleigh near top-rated schools and just minutes from everything North Hills has to offer, this home delivers convenience, flexibility, and lasting appeal in one of the city's most sought-after neighborhoods.
| 6 hours ago | Listing updated with changes from the MLS® | |
| 2 days ago | Status changed to Active | |
| a week ago | Listing first seen on site |
Listings that are marked with an icon are provided courtesy of the Triangle MLS, Inc. of North Carolina, Internet Data Exchange Database. Copyright 2025 Triangle MLS, Inc. of North Carolina. All rights reserved.
Last checked: 2025-11-10 05:05 PM UTC

Did you know? You can invite friends and family to your search. They can join your search, rate and discuss listings with you.