1001 Kelnor CourtMorrisville, NC 27560
Due to the health concerns created by Coronavirus we are offering personal 1-1 online video walkthough tours where possible.




Mortgage Calculator
Monthly Payment (Est.)
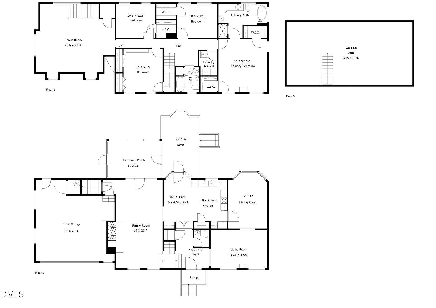
$4,083NEW PRICE!!! Prime RTP Location! Beautifully landscaped home with 5 bedrooms, 3.5 bathrooms, and generous living space in Chessington a sought-after community. Main level features 10-ft ceilings, 9-ft doors, site-finished hardwood floors, and a flexible front room with French doors—ideal for a home office or formal space. The open-concept kitchen includes a large center island, 5-burner gas cooktop, granite counters, tile backsplash, and walk-in pantry. Kitchen flows into a spacious family room with corner fireplace and plantation shutters. Dining area also features plantation shutters and overlooks the private backyard. Main floor guest suite with full bath offers excellent flexibility for guests or multi-generational living. Exceptional outdoor living spaces include a screened-in porch, extended patio with built-in firepit, and gas line for grilling—perfect for relaxing or entertaining year-round on the professionally landscaped lot. Upstairs: Expansive primary suite with tray ceiling, large walk-in closet, dual vanities, soaking tub, tiled shower with bench, and two linen closets. Three additional bedrooms share access to a full bath and laundry room with sink and cabinetry. Third-floor bonus room is stubbed for a wet bar and offers additional flexible space for media, playroom, or gym. Additional features: side-entry garage with built-in shelving, plantation shutters/blinds, mud room and abundant storage. Walkable to Wegmans and convenient to top schools, shopping, dining, and major RTP employers. Move-in ready and loaded with upgrades—schedule your showing today!
6 hours ago | Listing updated with changes from the MLS® | |
5 days ago | Price changed to $895,000 | |
3 months ago | Listing first seen on site |

Listings that are marked with an icon are provided courtesy of the Triangle MLS, Inc. of North Carolina, Internet Data Exchange Database. Copyright 2025 Triangle MLS, Inc. of North Carolina. All rights reserved.
Last checked: 2025-10-13 02:09 PM UTC
Did you know? You can invite friends and family to your search. They can join your search, rate and discuss listings with you.